Nos avis clients
Nos avis clients
Se connecter
Nous suivre
0
3 Pièce(s)
2 Chambre(s)

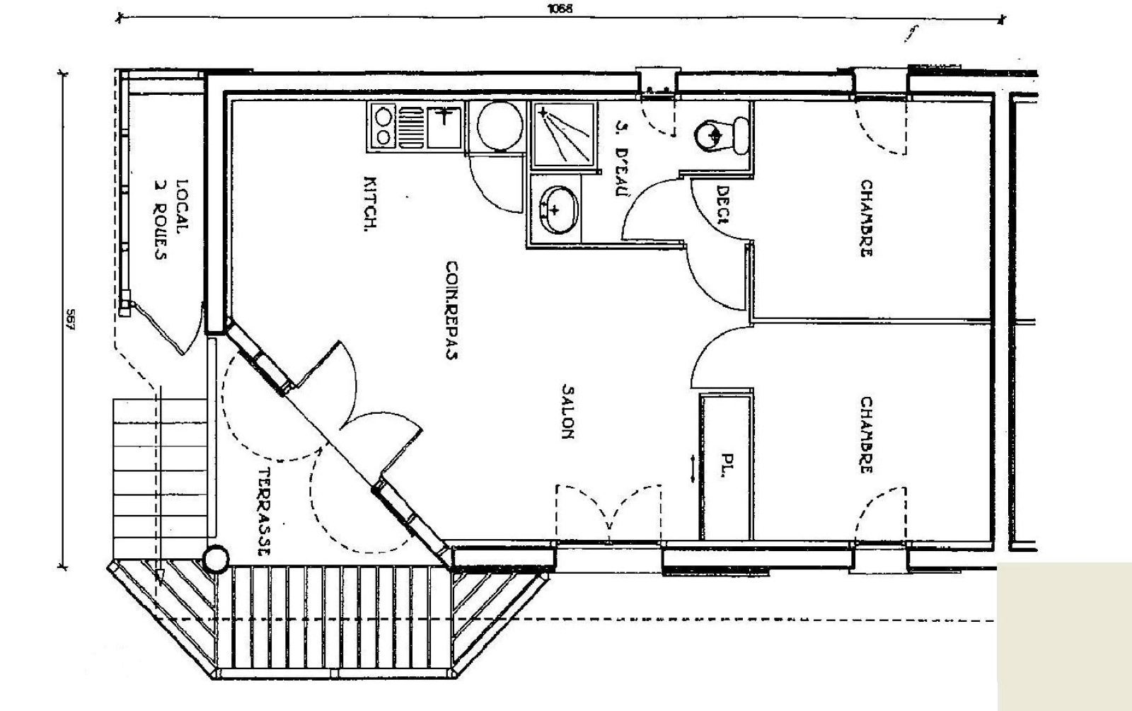
Le Drive maison de 2 chambres

Lacanau ocean (33680)
Réf : 161732

Lacanau-Océan A saisir maison de 2 chambres Nouveau en vente dans le lotissement du Drive Situé à 2 mn du golf 9 trous de l'UCPA A 10 mn en vélos des plages et du centre ville Ce pavillon mitoyen que d'un seul côté, comprend 2 chambres, un salon séjour orienté plein sud, sur jardin et terrasse, une douche avec WC. Un confortable abri de jardin accolé à la construction. Une bonne isolation pour les portes et fenêtres en double vitrage PVC, construction des années 2000. Un parking pour 2 véhicules, peu de charges de 150 euros par an, pour 20 maisons. Une belle possibilité d'agrandissement sera autorisée par la Mairie ! Visite tous les jours sur rendez-vous. 

En Bref

Code postal 33680
Surface habitable (m²) 40 m²
surface terrain 296 m²
Nombre de chambre(s) 2
Nombre de pièces 3
Nombre de niveaux 1
Vue dégagée
Nb de salle d'eau 1
Cuisine Kitchenette
Mode de chauffage Autre, Autre
Type de chauffage Autre, Autre
Format de chauffage AUTRE, Individuel
Murs mitoyens 1
Nombre de parking 2
Exposition Sud-Ouest
Année de construction 2000
Quartier Agglomeration, Centre Ville, Golf, Golf De Lacanau, Le Drive
Terrain Cloturé OUI

Infos financières

Charges 15 €
Taxe foncière annuelle 465 €
Taxe d'habitation 480 €
Ces biens peuvent vous intéresser